
一時と比べると、少し寒さが緩みました。
これも立春効果でしょうか。

難波宮跡公園にサザンカが咲いていました。
2023年の初めまで住んでいた、古家の庭にあったことを思い出します。

寒さが緩む少し前。
首がこって、こって仕方なく、ちょっと頭痛までしてきたので、整骨院に行ってきました。
問診の後「姿勢を見てみますね」と写真を撮って見せてくれました。
首の傾き3度、肩のずれ31%と、結構ずれている感じ。
「首と腰が大分張ってますねえ」とのことで、針治療もしてもらいました。
恐々でしたが痛みもほぼなく、ちょっと様子を見てみようと思います。
あくまで対処療法なので、根本の姿勢を直していくしかないのですが。
「意識のずれ」とか、「感覚のずれ」等、「ずれ」という言葉に、ポジティブなイメージはありません。
しかし建築においては別です。

コンクリートのCUBEを、1階と2階でずらしたのが「下町のコンクリートCUBE」です。

2階部分をずらすことで、縁側的な空間をつくりました。

南西方向へ斜めにずれているところがポイントです。

張り出した部分が、近隣からの視線もコントロールしています。

それが大きな開口部があってもプライバシーを守る役割を果たしているのです。

「高台の家」では、ずれてできた2階の空間を重要視しました。

解放的な郊外型の住宅において、プライバシーを守れるアウトドアリビングを作り出しています。

近隣と最も段差のある南東方向は、視線を気にする必要がありませんでした。

その方向には空港があり、それも含めて景色を楽しめるよう開口を設けています。

家族でいつでもBBQを楽しめる空間になりました。

屋外との緩衝帯の役割も果たし、室内空間の質を高めているのです。
反対側の張り出し部には庇を加え、駐車場としています。

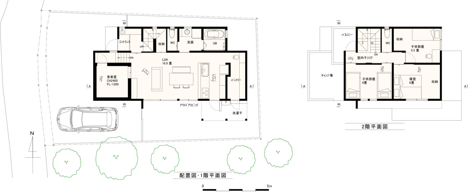
「没頭できる家」は、縦方向にずらしました。

音楽室を半地下にすることによって、まず防音効果を高めています。

LDKとの繋がり方も、面白さが増しています。

秘密基地のような空間となっているのです。

縦方向のずれによって、更に魅力的な空間が生まれました。

2階バルコニーより低く、1階からは寄り付けない空間です。

この部分をキャンプ場としたのです。

地下は、地上階の1.5倍のコストが掛かると言われます。
しかし、その他の部分を極限までシンプルにすることで、かなり金額的には抑え込みました。

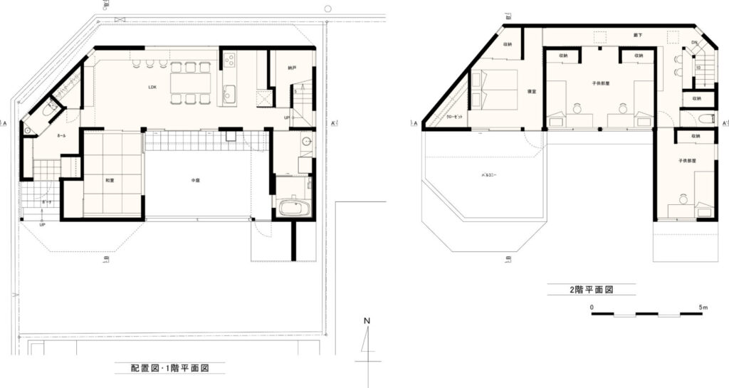
最後は、ずれをデザインに活かした「ダイヤモンドカットの家」です。

敷地周辺は、物作りの街で工場が立んでいます。
トラックの通行なども多く、できるだけ道路から離れたいところです。

しかし離れれば離れる程、南側からの日当たりが悪くなるので、2階部分は北側にずらしました。

そのことによって、1階部分の日当たりを確保できているのです。

明るいLDKには、カウンターも設けています。

子供さんが勉強を大好きになってくれたと聞き、本当に嬉しい限りです。

2階は北側に90cmずらしたのですが、起点となった部分と斜めに結ぶことで、魅力的な造形になることが分かってきました。

ちょこっとずれから生まれた形です。
「ずれ」が魅力的な空間を生むことが分かって頂けたでしょうか。
ただ、自分の体のずれと、世間とのずれはNGなので、そちらの方はずれがないことを目指したいと思います。
■■■10月1日(水)『建築人 10月号』に「尼崎園田えぐち内科・内視鏡クリニック」
が掲載されました■■■
■9月28日(日)地域のために、リハビリ棟を増築「ささき整形外科クリニック」の内覧会開催■
■2月12日(水)大阪市中央区上町1-24-6に移転しました
「上町のアトリエ付き住宅〈リノベーション〉」
電話、faxは変更ありません■