2020年4月2日。はじめて佐々木院長とお会いした。
新型コロナの緊急事態宣言が発令されたのは、その5日後だった。
世の中の情勢を見極めながら、プールのある「ささき整形外科 デイケアセンター」は、2022年12月に着工。
”生まれ故郷である太子町で、介護が必要な方が治療・リハビリを通じて、いつまでも元気に暮らしていけるお手伝いをするために、この度ささき整形外科デイケアセンターを開設いたします。
ささき整形外科デイケアセンター」は要介護、要支援状態からの機能の改善を目指したデイケアです。”
患者さんには、足腰への負担が少ない水中での運動を勧めるそうだが、その施設が足りていないことが計画の動機になっていた。
そして、全国的にも珍しいプールのあるデイケアセンターは、2023年の8月に竣工した。
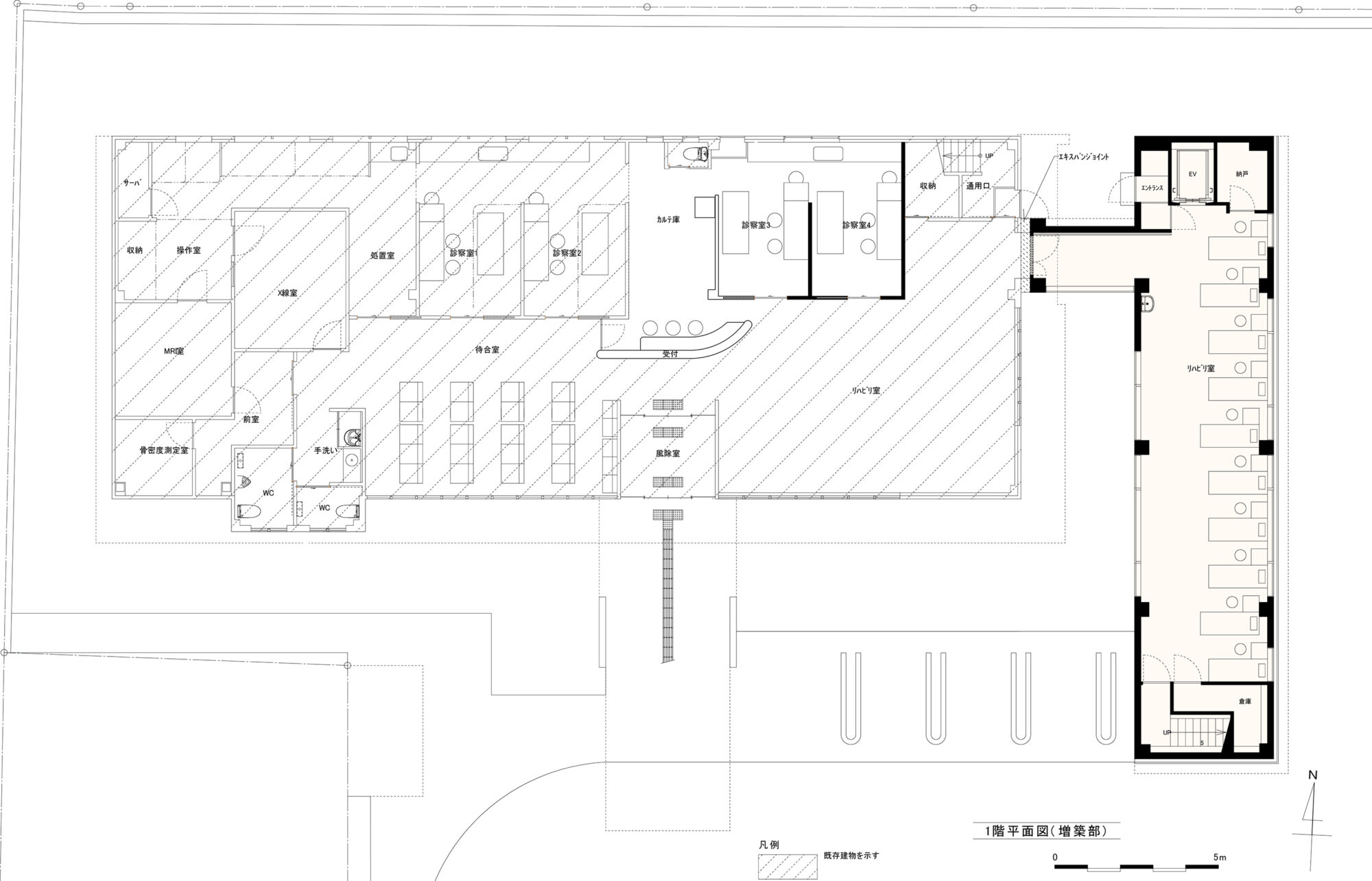
患者さんが増える一方の、母体である「ささき整形外科クリニック」と、デイケアセンターは隣り合っている。
院長から「何とかリハビリする空間を増やせませんか」という相談を受けたのは、デイケアセンターが竣工した1ヶ月後だった。
クリニック側の駐車場を一部取り壊し、リハビリ棟を増築する計画を進めることになったが、計画は困難を極めた。
駐車場をできる限り残し、リハビリする空間を少しでも大きくしたい。相反する課題が、常に立ちはだかる。
また、既存建物に増築棟をつなぐのは、既存部分も現行法規の訴求を受けるため、許認可を受けるハードルが大変高くなる。加えて、消防、土木事務所、保健所等、多くの関係省庁との協議を繰り返した。
院長が望む空間を確保するには、4階建てにする必要があることも分かってきた。何より、クリニックの営業を止めずに完成させて欲しいと……
あらゆる課題を解決できたのは、着工予定日の2日前だった。
2つの施設の間に建つリハビリ棟は、中立的な意味合いを込めて真っ白なキューブとしている。
その上で、開口から入ってくる光を制限し、外壁に光をできるだけ当てないよう、4枚の庇を外周に巡らせた。
その陰影が、この建物をより印象的なものとし、地域のランドマークとなってくれることを期待している。
1、2階にはベッドが10台程入るリハビリ室。3階にはスタッフが集まれるオープンスペースと、リラックスできるようカフェのようなスタッフエリアがある。
スタッフエリアには、お茶をしたり、昼食を食べられるよう、広いカウンターがあり、仮眠スペースも備えている。
屋上は雨除けをそなえているので、どんな天候でも、ちょっと体を動かしたり、西播磨の穏やかな風景も楽しめるのだ。
それらを全てバリアフリー化するため、エレベーターも備えている。
5年前の4月2日、姫路城に立ち寄ったが、咲き誇る桜とは対照的に、人影はまばら。胸が痛いほどの閉塞感、終わりの見えない感染拡大……あれから本当に色々なことがあった。
新型コロナ前夜に計画がスタートし、この地に2件の医療施設をデザイン、設計・監理させて貰うことなど想像もできなかったことだ。
既存クリニックの動線を更に効率化し、オープンにするための受付まわりの改修計画や、新たな診察室の増設工事などは、日祝と通常のお盆休みの3日間の間に全て完了させ、無事予定通りに営業を再開できた。
クリニックを営業しながらの計画・工事は、綱渡りのような緊張感だったが、職能を必要として貰えるなら、これほど光栄なことはない。
これらの経験の上で、改めて「医療」の重要性を感じる。
そして、つくり手として関われた時、何にも代えがたい遣り甲斐を感じている。