一般社団法人住吉区歯科医師会館– 虫歯の鳥はいない。白いくちばしとトップライトをもつ歯科医師会館 –
一般社団法人住吉区歯科医師会館
– 虫歯の鳥はいない。白いくちばしとトップライトをもつ歯科医師会館 –
歯科医師会の役割は以下のようなものだ。
歯科医同士で情報を共有し、歯科治療に関する知識を深めるための講習を開催。地区の医療・福祉団体や他地区の歯科医師会と合同セミナーを開催。積極的に技術向上に取り組んでいる。
小学校で歯科検診を受けたことがある人は多いと思うが、これらも歯科医師会が窓口となっての社会貢献活動のひとつである。
こういった活動の拠点となるのが歯科医師会館だが、旧会館が築38年となり、耐震基準を満たしていないことが建て替えの動機となった。パブリックな建物ゆえ、コンペで設計者を選ぶことになり、当社も参加させて貰うことにした。書類選考で10社に絞られ、2次選考に提出した案は以下のようなものだ。
歯科医師会館なので黒はない。やはり白く清潔な建物がよい。白い箱状の建物中央に、大きな開口を開け、くちばし状の庇を設けた。
「虫歯の鳥などいないのでは」という、ちょっとユーモアを込めたメッセージを添えた。
事務局の方から、旧会館は暗く、寒いと聞いていた。隣地が迫り窓を開けることもままならないからだ。
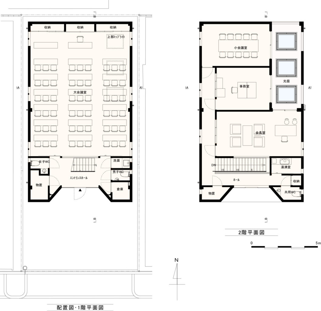
光と風に満ち、地域の歯科医師の皆さんが足を運ぶ際に、楽しみにして貰えるような会館を模索する上で、プランに最も影響を与えたのは大会議室だ。
セミナー等には多くの会員が訪れる。また、地域の方々への開放という計画もある。非常時の避難経路を考えると1階が望ましい。建築基準法上の「採光」が難しいが、2階の一部を光庭とし、トップライトを用いるプランを考えた。
1階の北奥の最も暗い部分に安定した光を与え、ドラマティックな風景を演出してくれる。また、その光の下に作家、mariane maiko matsuoの絵画を壁に埋め込むことも決まった。銀箔がその光を反射し、時々で違った表情を見せてくれるだろう。
2階においては、その光庭を囲むように各室を配置した。気候の良い時期には、隣地を気にせず掃き出し窓を全開放できる。また、夏の暑い時期には裏路地の冷たい風が通り抜ける。一粒で二度美味しいのだ。
歯科医師会館だけに健康な建物を目指したのだ。
住吉区歯科医師会のwebサイトから引いてみる。
「地域の皆さまの歯の健康を守ることができるのは私たちだけ」という誇りをもって、より歯科医療現場の最前線で活躍できるよう努力していきます。
その気概に応えられ、また、地域の方々との交流の場となればこれほど嬉しいことはない。
Data
| 所在地 | 大阪市住吉区南住吉3-12-12 |
|---|---|
| サイト | https://sumiyoshiku-shika.jp/ |
| 構造 | 鉄骨造 2階建て |
| 竣工 | 2019年5月竣工 |
| 敷地面積 | 172.54㎡(52.2坪) |
| 延面積 | 182.36 ㎡(55.2坪) |
| 建築面積 | 103.22 ㎡(31.2坪) |
|---|---|
| 1階床面積 | 99.15 ㎡(30.0坪) |
| 2階床面積 | 83.21 ㎡(25.2坪) |
平面図
立面図
断面図
- 歯科医師会館
- ※
- ※mariane maiko matsuo
- ※
- ※
- ※
- ※






































