神戸の高台の家– 屋根裏を狙え<リノベーション> –
神戸の高台の家
– 屋根裏を狙え<リノベーション> –
神戸は大変住みやすい街と言える。北には山、南には海。南向きの高台は大変日当たりがよい。よって、多くの住宅が建ちならぶ。
クライアントは、初めてのデートが住宅展示場だったという新婚夫妻で、新築、リノベーションの両方を検討していた。高台にあるこの物件が見つかり、リノベーションを選択することになった。
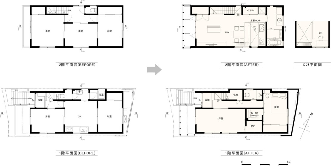
築20年を超える家は、屋根裏が使われていないケースが多い。瓦屋根の場合、ある程度の勾配が必要となる。防水、屋根材の進歩もあり、そこまでの勾配を要しない現在より、大きな屋根裏がある。
断熱材の性能が上がったことも、屋根面一杯まで空間を使える大きな理由である。リノベーションにおいて屋根裏は、宝の山なのだ。
2階は水周りと、LDKの一室空間のみとし、構造体も現しとした。中央部にはロフトを設け、奥深くに光と風を導いている。また、高台の特性を活かしたその眺望も素晴らしい。
キッチンはタフなステンレス製の壁付けとし、ダイニングとの間には、人工大理石のカウンターを造りつけた。この上で直接パン生地をこねるのだが、実際に頂いた手作りパンは、本当に美味しかった。
作曲が趣味の夫。「男前なキッチン」が好きな妻。夫妻に相応しい家に生まれ変わったと思っている。夏には、ロフトから眺める花火大会を楽しみにしているそうだ。
メディア掲載
2016年3月23日
フジテレビ『みんなのニュース』で放映されました。
Data
| 所在地 | 兵庫県 |
|---|---|
| 構造 | 木造 2階建て 新築 |
| 竣工 | 2014年3月竣工 |
| 敷地面積 | 70.05 ㎡(21.2坪) |
| 延面積 | 87.39 ㎡(35.2坪) |
| 建築面積 | 43.83 ㎡(13.3坪) |
|---|---|
| 1階床面積 | 43.83 ㎡(13.3坪) |
| 2階床面積 | 43.56 ㎡(13.2坪) |
| 工事費用 | 1580万円 |






























