ドタバタ広場のある家– 思い切りドタバタできる、吹抜けとピアノ室のある家 –
ドタバタ広場のある家
– 思い切りドタバタできる、吹抜けとピアノ室のある家 –
敷地は大阪の中南部にある。古くから河内と大和をつなぐ街道の要所として栄え、現在も多くの古墳が残っている。敷地は1970年頃に開発された静かな住宅地にあった。
ご主人は大手ゼネコンに勤め、奥さん、小学生の姉弟の4人家族。当初は大阪市内のマンションに暮らしていた。今回の新築にあたって、思う存分ドタバタ出来る家を、ということになった。
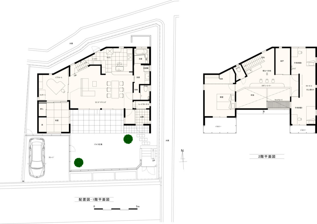
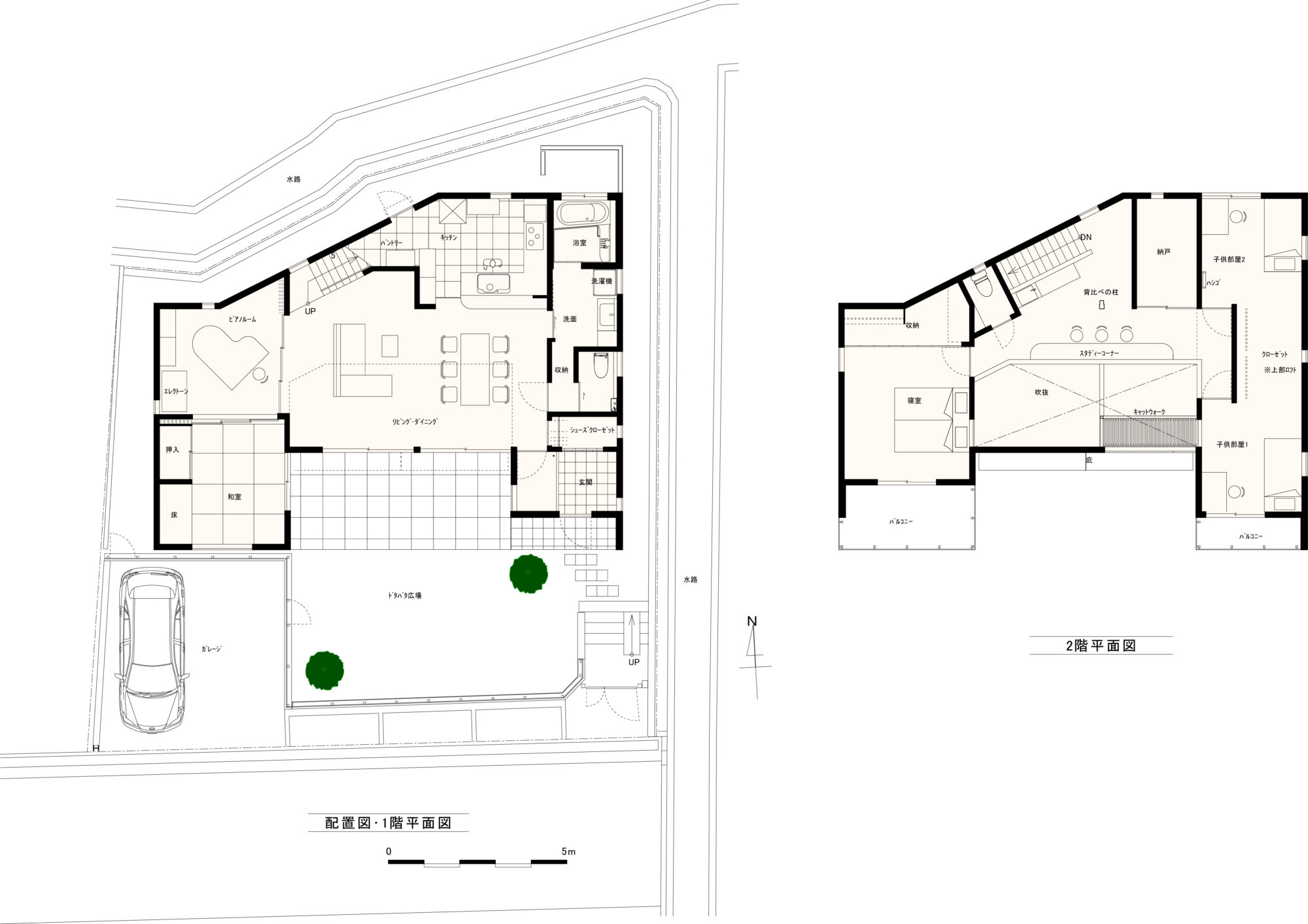
敷地は南面し、日当たりは非常に良い。それを損なわないよう、建物は出来る限り北に配置し、余白をドタバタ広場と名付けた。
1階はリビング・ダイニングを中心に、東に水廻り、北にキッチン、西にピアノ室と和室を配置。上部は吹抜とした。リビング奥の階段を上がると、4mの机を備えたスタディーコーナーに出る。動線の途中に淀みを設ける事で、ふと立ち止まれる空間になればと考えた。
吹抜側の腰壁には、ランダムな開口をあける。ご主人のアイデアだが、思わずのぞきたくなるようなものをイメージした。最も現在は、ボール遊びの格好の標的となっているのだが。
子供部屋はクローゼットでつながれている。映画「ET」の冒頭に、少年とETが隠れていた場所からイメージしたものだ。上部ロフトも子供部屋からハシゴで登れる。吹抜へ向かって顔を出せば、一番高い場所から、家全体を見下ろすことができる。収納は、シューズクローゼット、キッチン横の階段下、2階の納戸と、各エリアに容量のあるものを備えた。
ピアノ室、スタディーコーナー、ロフト、ドタバタ広場。これらは、暮らしに何かを付加したい、という思いから生まれたものだ。必要以上に恣意的なものは不要だが、何か行動を起こしたくなる仕掛けは積極的に取り組みたいと思う。家はいつでも、家族の幸せの為にあるのだから。
メディア掲載
Data
| 所在地 | 大阪府 |
|---|---|
| 構造 | 木造 2階建て 新築 |
| 竣工 | 2009年秋竣工 |
| 敷地面積 | 242.90㎡(73.44坪) |
| 延面積 | 162.43 ㎡(49.1坪) |
|---|---|
| 1階床面積 | 92.21 ㎡(27.9坪) |
| 2階床面積 | 70.22 ㎡(21.2坪) |
| 工事費用 | 3000万円台 |





















